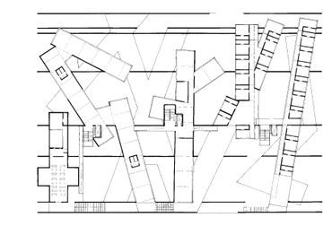
Location: Barcelona, Spain
Status: Small Town Planning
Collaboration: Flatz Architect and Vienna Synthetica
The concept behind the Barcelona Pavilion’s "Open Wall" is both a tribute to Mies van der Rohe's design philosophy and a challenge to it. Mies’ use of points, lines, and planes is reimagined on a larger scale, extending beyond the pavilion into a small-town planning exercise. This expansion introduces the fluidity and openness of the pavilion’s spaces into a new context—one that defines what makes a city or small town.
The "Open Wall" concept integrates essential elements of community: sacred spaces, lodging, cultural institutions, housing, and areas for education and connection. These elements work together to create a place where movement and interaction occur both horizontally and vertically. The design emphasizes fluidity and flexibility, inviting connections and fostering exchange in a dynamic, evolving environment.












Copyright © 2025 Design Burrow - All Rights Reserved. CONTACT US HERE
We use cookies to analyze website traffic and optimize your website experience. By accepting our use of cookies, your data will be aggregated with all other user data.